Изготовление чертежей
Предлагаем проектирование и разработку чертежей для какого либо устройства, механизма, оборудования и т.д. Поможем Вам в полном объеме разработать необходимый комплект чертежей и конструкторской документации необходимой, к примеру, для запуска устройства, детали или приспособления в производство.
Комплект необходимых чертежей может быть разработан нами по Вашим эскизам или полностью с «нуля». Кроме того, комплект чертежей может быть разработан на основании имеющегося у Вас прототипа, заготовки, макета или образца. Если есть макет изделия или образец, то проведем обмеры модели и на их основании разработаем необходимый комплект чертежей. В любом случае, для построения чертежа, необходимо знать размеры и габариты объекта. Оформление черетежей соответствует стандартам и требованиям заказчика.
Идея, Проект,
Результат

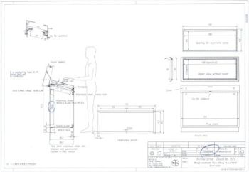
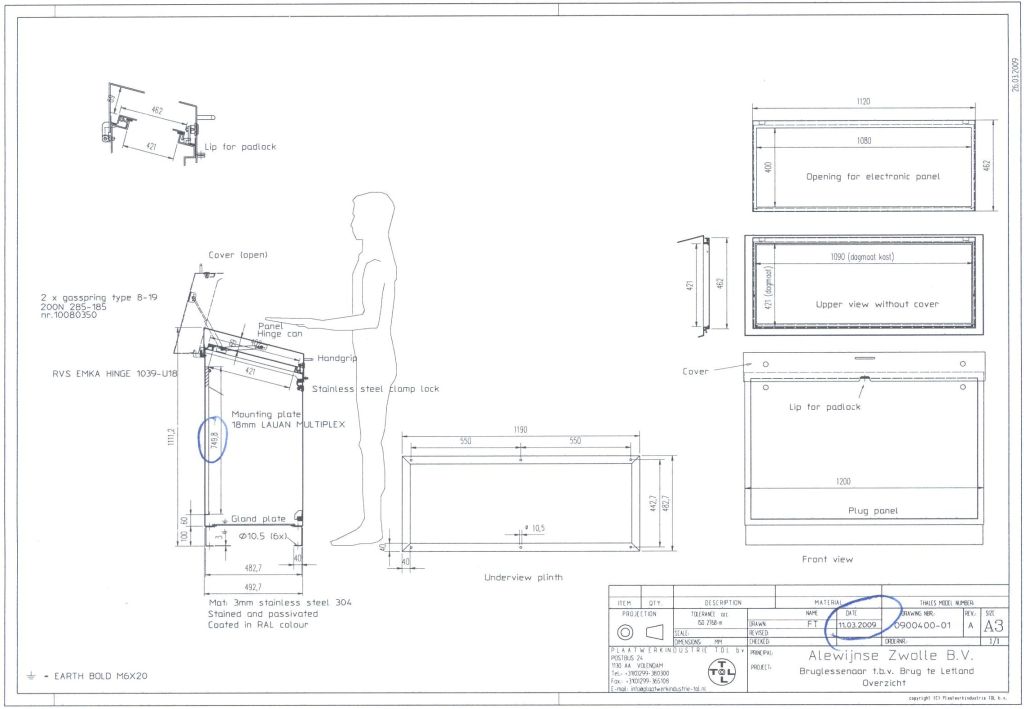
Вентспилс - корпус пульта управления единственного в Латвии разводного моста
(восстановленного Вентспилсского моста через реку Вента)
(нажать на рисунок, чтобы увеличить)
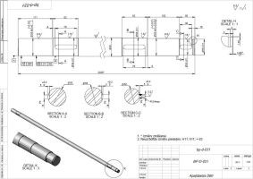
Машиностроительное проектирование.
Разработка машиностроительных чертежей и конструкторской документации по рабочим эскизам в соответствии с требованиями заказчика.
Создание 3D моделей (3d проектирование) и сборочных узлов.
(нажать на рисунок, чтобы увеличить)
Для выполнения работ необходимо:
Заполненное техническое задание.
Заполненное техническое задание.



