Для выполнения работ необходимо:
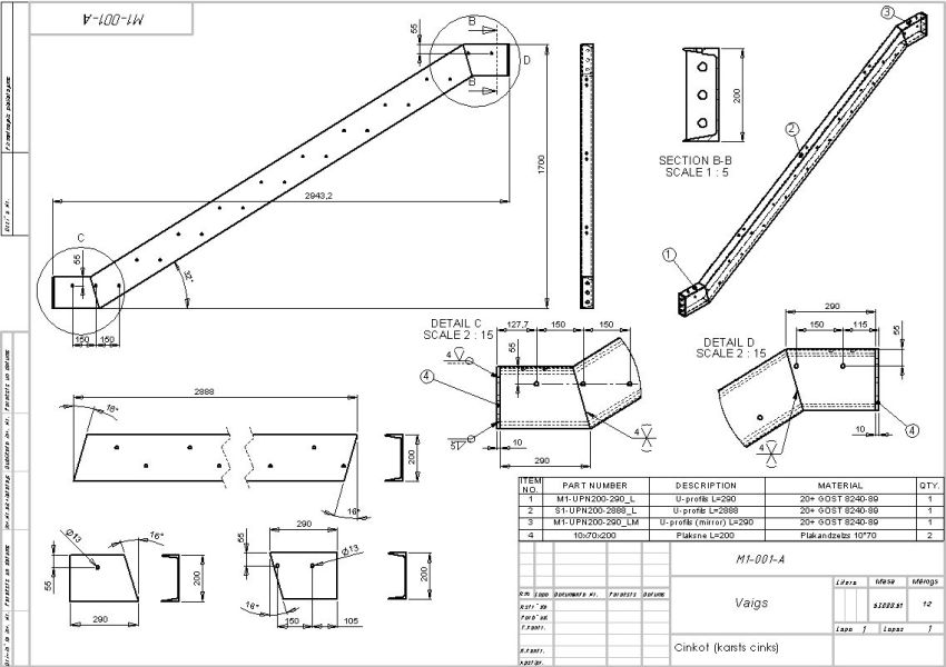
Чертежи КМ (Конструкции Металлические), которые являются основной базой для разработки рабочих деталировочных чертежей марки КМД (Конструкции Металлические Деталировочные).
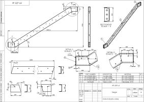
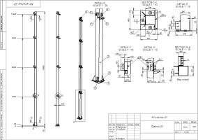
Создание 3D моделей (3d проектирование) и сборочных узлов.
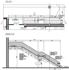
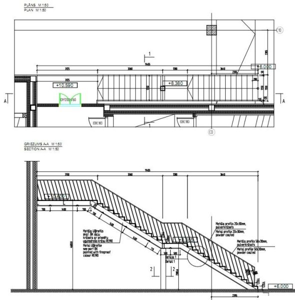
Процесс проектирования показан на примере эвакуационной лестницы, установленной в торговом центре Riga Plaza
На базе архитектурного чертежа подготавливается модель
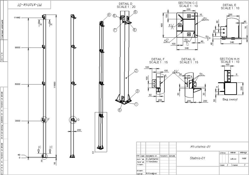
Затем, после замеров на месте и согласования, подготавливается комплект чертежей КМД для производства каждой детали лестницы и монтажная схема.
(нажать на рисунок, чтобы увеличить)
Эвакуационная лестница установлена в Цесисе.








