| Главная » Статьи » Готовые проекты » Лестницы |
Лестница из алюминия на балконе
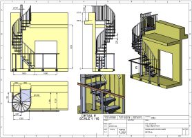
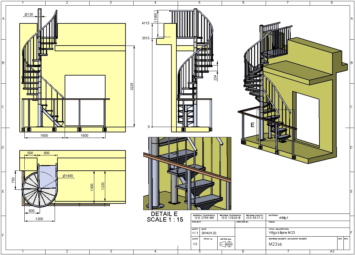
| Проект винтовой лестницы разработан для удобного выхода с балкона на
террасу, расположенную на крыше здания. Для облегчения веса лестница
полностью изготовлена из алюминия и её вес составил около 160 кг.
Получилась удобная и легкая конструкция, как и рассчитывал заказчик.
Установка и монтаж заняла 1 день. На основании полученного архитектурного чертежа с планом размещения лестницы, подготовлена модель для согласования отдельных узлов, а затем разработан полный комплект документации (деталировка) для производства и монтажа лестницы. ![]() (Для увеличения нажмите на картинку) (Для увеличения нажмите на картинку) | |
| Просмотров: 726 | Теги: | Рейтинг: 0.0/0 |
| Всего комментариев: 0 | |


