| Главная » Статьи » Готовые проекты » Лестницы |
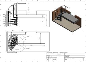
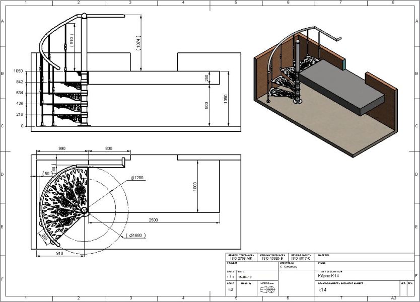
Винтовая лестница, по желанию заказчика, должна была выглядеть как старая лестница изготовленная методом литья. Это было необходимо для сохранения внешнего вида здания и добавления к уже готовому капитальному ремонту элемента старины. По тех.заданию лестница устанавливалась на уровне 6 этажа и должна быть разборной для того, чтобы монтажники смогли перенести детали через чердак. Целиком сваренная лестница не могла быть доставлена до места установки из-за узких дверных проемов. Некоторое время ушло на поиск очертаний и форм старинных литых изделий, и на их основе подготовить модели для вырезки из листового металла. Толщина металла - 10 мм. После согласования с заказчиком визуализации сегментов лестницы началось проектирование и разработка КМД (чертежи на деталировку всех элементов). (Для увеличения нажмите на картинку) Теперь есть возможность из готовых сегментов складывать лестницу необходимой высоты, как конструктор. | |
| Просмотров: 748 | Теги: | Рейтинг: 0.0/0 |
| Всего комментариев: 0 | |



